PEARL NECKLACE

8426 Lufingen, 2025

Wettbewerb auf Einladung

LIFITA AG

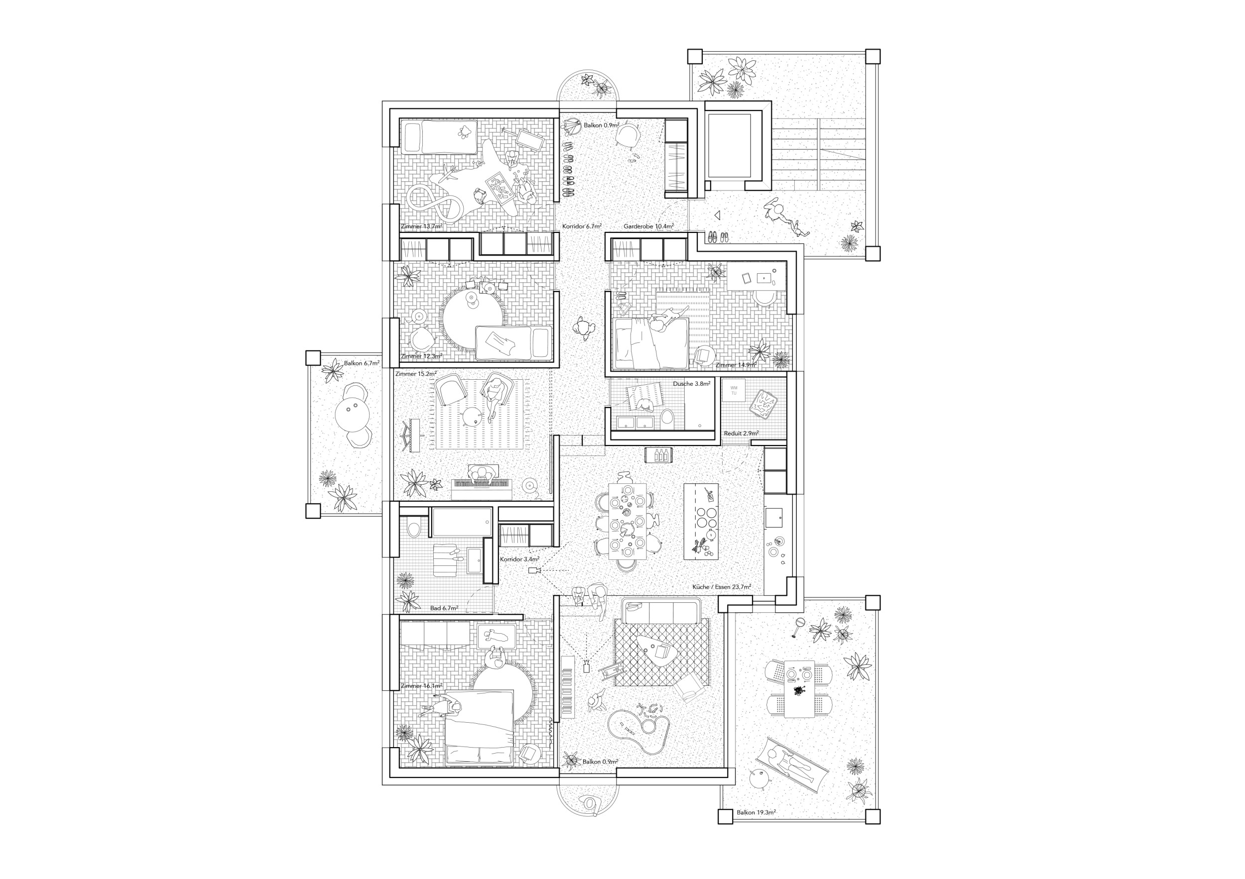
Der klar strukturierte Baukörper fügt sich in die topografisch bewegte Landschaft am Dorfbach ein. Vier geschossweise organisierte Wohnungen orientieren sich in alle Himmelsrichtungen und schaffen so eine räumliche Durchlässigkeit mit hoher Wohnqualität. Die Zimmer reihen sich wie eine Perlenkette über drei Geschossebenen parallel zum Gefälle nacheinander auf. Die Materialität der Fassade aus Putz und Beton interpretiert zeitgemäss die lokale Bautradition.

PEARL NECKLACE

8426 Lufingen, 2025

Wettbewerb auf Einladung

LIFITA AG

Der klar strukturierte Baukörper fügt sich in die topografisch bewegte Landschaft am Dorfbach ein. Vier geschossweise organisierte Wohnungen orientieren sich in alle Himmelsrichtungen und schaffen so eine räumliche Durchlässigkeit mit hoher Wohnqualität. Die Zimmer reihen sich wie eine Perlenkette über drei Geschossebenen parallel zum Gefälle nacheinander auf. Die Materialität der Fassade aus Putz und Beton interpretiert zeitgemäss die lokale Bautradition.